




Regency U41-3 Gas Fireplace Wiring Diagram
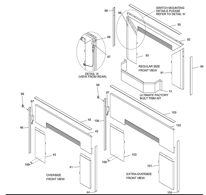
Regency U41-3 Gas Fireplace Parts List





We use cookies to ensure the basic functionality of this website and to improve your experience. Essential cookies are required for the site to operate (e.g., your shopping cart and session). Analytics cookies help us understand how visitors use our site. Learn more.