
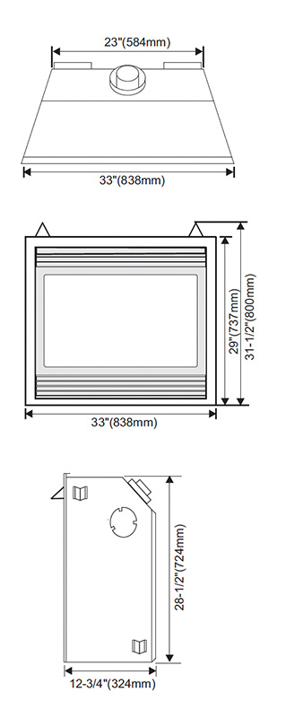
Stocked parts for the Regency P33-5 gas insert are listed below
Call for availability of other parts 800-522-8216






Regency P33-5 Gas Insert Wiring Diagram
Regency P33-5 Gas Insert Parts List

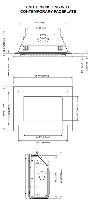
Stocked parts for the Regency P33-5 gas insert are listed below
Call for availability of other parts 800-522-8216






We use cookies to ensure the basic functionality of this website and to improve your experience. Essential cookies are required for the site to operate (e.g., your shopping cart and session). Analytics cookies help us understand how visitors use our site. Learn more.